طراحی و نقشه‌کشی فاز یک چیدمان تجهیزات و تأسیسات

طراحی فاز یک چیدمان تجهیزات و تأسیسات، یکی از کلیدی‌ترین مراحل در آماده‌سازی یک فروشگاه یا فضای تجاری است. این مرحله نه‌تنها زیبایی بصری و نظم محیط را تضمین می‌کند، بلکه نقش مؤثری در بهینه‌سازی مسیر حرکت مشتریان، افزایش فروش و کاهش هزینه‌های عملیاتی ایفا می‌نماید. گروه طراحی پارس ریتیل با بهره‌گیری از تیم متخصص، نرم‌افزارهای پیشرفته و استانداردهای جهانی، خدماتی جامع و دقیق در این زمینه ارائه می‌دهد.

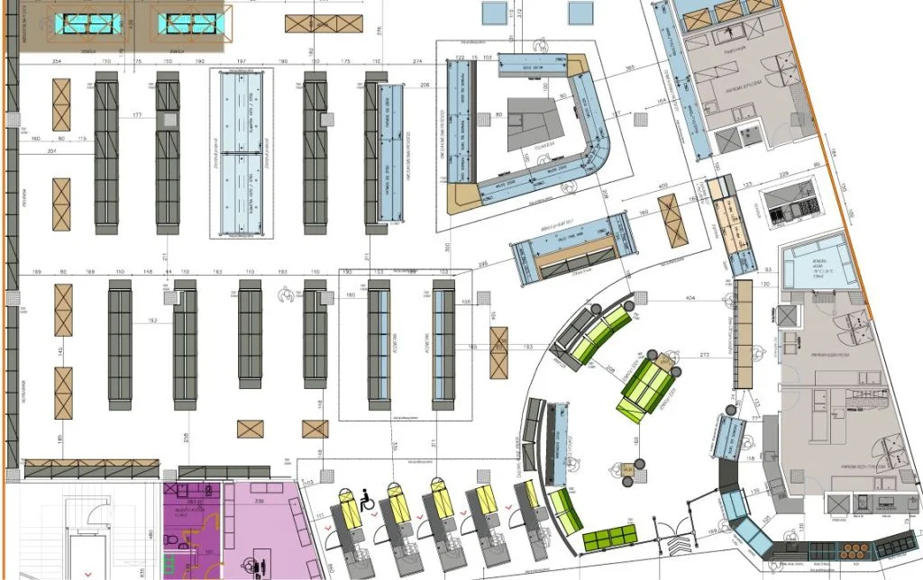
طراحی چیدمان فروشگاه (فاز یک)

در طراحی چیدمان فروشگاه فاز یک، تیم Pars RDG ابتدا با برداشت دقیق فضا و تحلیل پلان معماری (Floor Plan)، مسیرهای حرکتی مشتریان و جانمایی اصلی تجهیزات را مشخص می‌کند. این مرحله بر اساس اصول طراحی داخلی (Interior Design) و استانداردهای بازاریابی فروشگاهی (Visual Merchandising) انجام می‌شود تا تجربه خرید بهینه‌ای شکل بگیرد. همچنین در فرآیند طراحی فضای تجاری (Commercial Architecture)، بخش‌های کلیدی مثل ورودی، صندوق‌ها و مسیرهای اضطراری با رعایت اصول طراحی شهری (Urban Design) در نظر گرفته می‌شوند تا علاوه بر زیبایی، ایمنی و بهره‌وری فروشگاه نیز تضمین شود.

آغاز فرآیند طراحی با تحلیل نیازها و فضای موجود

فرآیند طراحی با درک دقیق نیازهای پروژه آغاز می‌شود. تیم ما با بررسی ویژگی‌های فیزیکی فضا، بازدیدهای میدانی و برگزاری جلسات مشاوره‌ای، اطلاعات جامعی از محیط جمع‌آوری می‌کند. سپس با استفاده از این اطلاعات، نقشه‌های اولیه‌ای تهیه می‌گردد که شمای کلی چیدمان تجهیزات و تأسیسات را ارائه می‌دهند. این نقشه‌ها پایه و اساس مراحل بعدی طراحی و اجرای پروژه را تشکیل می‌دهند.

space optimisation 1024x644 1 طراحی و نقشه‌کشی فاز یک چیدمان تجهیزات و تأسیسات
8f86273e816c0168f00708e078730ffd طراحی و نقشه‌کشی فاز یک چیدمان تجهیزات و تأسیسات

ارزیابی دقیق نیازهای پروژه و مخاطبان

در این مرحله، تمرکز اصلی بر شناخت نیازهای دقیق پروژه، مخاطبان و کاربری فضای تجاری است. تیم ما با همکاری نزدیک با کارفرما، نوع محصولات، الگوی تردد مشتریان، الزامات ایمنی و بهداشتی و میزان فضای مورد نیاز برای هر بخش را تحلیل می‌کند. هدف این است که نقشه نهایی، پاسخی کامل و کاربردی به این نیازها باشد و کارایی، راحتی و زیبایی را توأمان فراهم کند.

طراحی هدفمند چیدمان تجهیزات

چیدمان تجهیزات باید به گونه‌ای انجام شود که دسترسی مشتریان به محصولات به سادگی امکان‌پذیر باشد و حرکت در فضای فروشگاه به صورت طبیعی، روان و بدون ازدحام صورت گیرد. تیم طراحی ما با تکیه بر تجربه میدانی و شناخت عمیق از رفتار مشتریان، نقشه‌هایی واقع‌گرایانه و قابل اجرا تهیه می‌کند. در این نقشه‌ها محل دقیق یخچال‌ها، فریزرها، قفسه‌ها، استندها، ویترین‌ها و سایر تجهیزات فروشگاهی با جزئیات کامل مشخص می‌شود.

طراحی تأسیسات با رویکرد عملکردی و اقتصادی

طراحی تأسیسات (مکانیکی و الکتریکی) نقش مهمی در پشتیبانی عملکردی تجهیزات فروشگاهی دارد. مهندسین ما با استفاده از نرم‌افزارهای تخصصی، مسیرهای بهینه برای لوله‌کشی، کابل‌کشی و تأمین برق تجهیزات را ترسیم می‌کنند. این طراحی‌ها به نحوی انجام می‌شود که ضمن پاسخگویی کامل به نیازهای عملیاتی، هزینه‌های اجرا و نگهداری به حداقل برسد. همچنین محاسبات دقیق برق مصرفی در هر بخش به‌صورت مجزا انجام می‌شود تا در آینده نیز امکان مدیریت بهینه مصرف انرژی فراهم گردد.

تضمین دقت و کیفیت با نرم‌افزارهای تخصصی و رعایت کامل استانداردهای بین‌المللی

برای دستیابی به دقت بالا، از نرم‌افزارهایی مانند AutoCAD و Revit استفاده می‌کنیم. این ابزارها به ما کمک می‌کنند تا نقشه‌هایی جامع و دقیق تهیه کنیم که تمامی جزئیات تجهیزات و تأسیسات در آن‌ها به‌وضوح مشخص شده‌اند. این نقشه‌ها مستقیماً در اختیار تیم‌های اجرایی قرار می‌گیرند تا اجرای پروژه با کمترین انحراف و بیشترین تطابق با طرح اولیه انجام شود.

کلیه طراحی‌ها مطابق با استانداردهای جهانی انجام می‌شود تا هم ایمنی فنی رعایت شود و هم امکان دریافت تأییدیه‌های قانونی فراهم گردد. برخی از این استانداردها عبارت‌اند از:

NEC (National Electrical Code)

IEC (International Electrotechnical Commission)

ASHRAE (American Society of Heating, Refrigerating, and Air Conditioning Engineers)

این استانداردها پایه‌ای علمی و عملی برای طراحی‌هایی هستند که در پروژه‌های فروشگاهی، تجاری و صنعتی اجرا می‌شوند.

همکاری مستمر با مشتریان و تیم‌های پروژه

در تمامی مراحل طراحی و نقشه‌کشی، اصل بر تعامل مداوم با مشتریان و سایر تیم‌های درگیر پروژه است. با برگزاری جلسات هماهنگی منظم، بررسی بازخوردها و استفاده از ابزارهای مدیریت پروژه، اطمینان حاصل می‌شود که تمام نیازها، تغییرات احتمالی و اصلاحات لازم در لحظه بررسی و اعمال شوند. این همکاری نزدیک باعث می‌شود پروژه با دقت بالا و بدون وقفه اجرا شود.

خدمات طراحی و نقشه‌کشی فاز یک چیدمان تجهیزات و تأسیسات گروه طراحی پارس ریتیل، راهکاری جامع برای شروع یک پروژه موفق است. با ترکیبی از دانش فنی، تجربه میدانی و تکنولوژی روز، ما این اطمینان را به شما می‌دهیم که پروژه‌تان با بالاترین کیفیت طراحی شده و آماده اجرا خواهد بود. همکاری با ما، انتخابی هوشمندانه برای دستیابی به چیدمانی زیبا، کارآمد و پربازده است.

استعلام قیمت